MITICA 31

Mítica 31 es una casa habitación ubicada al sur de la ciudad de Monterrey, Nuevo León.
Su ubicación ofrece vistas hacia la cordillera del Cerro de la Silla y la Sierra Madre, por lo que mientras que se busca generar intimidad y refugio hacia el interior de la casa, también se plantea que ciertas áreas puedan tener una sensación de conexión con sus alrededores, lo que provoca un concepto muy particular, lleno de contrastes.
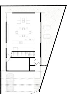
Es un proyecto distribuido en 3 niveles, en la planta baja se tiene el área social abierta que convive directamente con la vegetación de un patio que va creciendo hacia el fondo del terreno. Hacia el frente se disponen todos los espacios de servicio, generando que la ubicación de la escalera sea entre estos dos bloques, de manera que se vuelve un elemento íntimo, el cual se armoniza con iluminación natural con ventanas de remate y un gran domo en la azotea.
El segundo nivel son áreas de mayor privacidad, ya que se ubican las recámaras y una estancia, las cuales se distribuyen a través de un pasillo con terraza con vista hacia el patio, la cual es protegida con una celosía de madera que se utiliza con intención de generar una pantalla hacia el interior.
En el tercer nivel se dispone un área flexible que puede ir desde un estudio hasta una recámara de visitas, así como la terraza hacia el frente, que es el espacio que se propone para conectar con el contexto. Esta terraza se piensa como una manera de aprovechar la azotea, ya que, al ser la parte de mayor altura, permite vistas que no se podrían lograr en una planta alta. Vegetación, una pérgola y área de asador, es lo que le dan vida a la quinta fachada (Azotea) y permiten que el espacio se vuelva el lugar de reunión cuando se busca salir de la privacidad que se puede vivir en el área social y el patio en la planta baja.
@arquitecturamashumana
Cliente: Edénica
Año: 2021






